Suche

Baubeginn - Wohnen im Laufamholz

3 Zimmer Wohnung zum Kauf
563.700 €
Nürnberg-Klausener-Winkel-10-1.1

Überblick

Objekt ID: NKW10-1.1
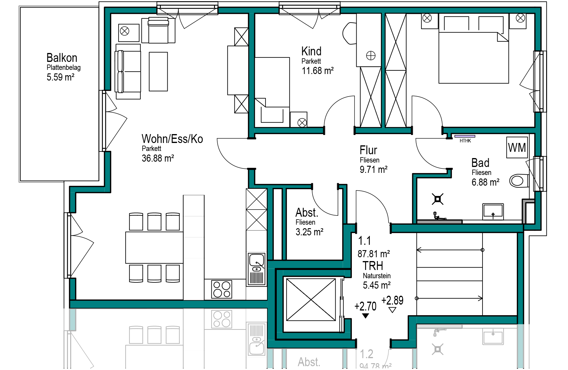
87,80 m²

Wohnfläche

3

Zimmer

1

Etage

Ja

Aufzug

Stellplatz

2026

Baujahr

ohne

Mobiliar

Nürnberg-Klausener-Winkel-10-1.1

Iris Schafhausen

Beschreibung

Schöner Wohnen

Eine geradlinige, zeitgemäße und klar strukturierte Optik macht dieses Wohnhaus zu einer Wohltat fürs Auge. Das Flachdach für voll ausgenutzt Raumhöhe ist das Sahnehäubchen obendrauf und gibt dem Gebäude bei aller Modernität einen richtig urbanen Charakter. Ihr Auto parkt komfortabel am eigenen Stellplatz oder in der Garage. Heimkommen, aufatmen und sich sofort wohlfühlen: Alles genau so, wie es sein soll.

Grünes Idyll

Ein pflegeleichter Garten bei den Wohnungen im Erdgeschoss zum Spielen, Grillen und Genießen macht das Sommerglück perfekt. Und wenn das noch nicht reicht: Das Landschaftsschutzgebiet Pegnitztal befindet sich in unmittelbarer Nähe. Perfekte Verkehrsanbindung an die Autobahn A3. S-Bahn Anschluss 700 m entfernt. Kurze Wege für den täglichen Bedarf. Schulen, Sportvereine, Ärzte im nahen Umfeld.

Innere Werte

Manche Details, die den Klausener Winkel 10 zu einem besonderen Bauprojekt machen, erkennt man erst auf den zweiten Blick. Zum Beispiel die hochwertige Innenausstattung – von lichtdurchfluteten Fensterelementen bis zu geschmackvollen Sanitärobjekten. Änderungswünsche sind vor Baubeginn jederzeit möglich.

Energie & Umwelt

Warum unnötig Geld fürs Heizen ausgeben? Im Klausener Winkel 10 werden Sie ganz automatisch zum Energiesparfuchs – der moderne Neubau-Standard hilft Ihnen dabei. Profitieren Sie von der durchdachten Heiztechnik und einzelraumgesteuerter Fußbodenheizung. Genießen Sie es! Leben Sie auf!

 

Änderungswünsche sind im Grundriss noch möglich!

Ausstattung

  • Optimale Grundrisse
  • Verschiedene Varianten: Wohnungstypen in unterschiedlichen Größen und Lagen
  • Durchdachte Ausstattung: Zentralheizung als Luft-Wärmepumpe, Fußbodenheizung, raumlufttechnische Anlage, dreifache Wärmeschutzverglasung
  • 1A Bauqualität: Hochwertige Materialien durch regionale Handwerker
  • Moderne Ausstattung: Namhafte Hersteller für zeitlose Wertigkeit
  • Energiestandard / -ausweis: GEG Standard / in Vorbereitung
  • Stellplatz/Garage: wahlweise

Lage

Laufamholz –
ein lebenswerter Ort für alle Generationen

Abseits der Hektik und doch in der Nähe der Nürnberger Altstadt entsteht in einer ruhigen Anliegerstraße im Klausener Winkel 10 ein kleines Mehrfamilienhaus mit 6 modernen Eigentumswohnungen.

Das Ortszentrum selbst ist unweit entfernt. Hier befinden sich Einkaufsmöglichkeiten für den täglichen Bedarf, Kindergärten, Grundschulen, Sportvereine und vieles mehr.

Die Anbindung an den öffentlichen Nahverkehr ist optimal: Eine Haltestelle für den VGN befindet sich in unmittelbarer Nähe. Der S-Bahnhof ist in rund 10 Minuten zu Fuß erreichbar. Die Anbindung an die Autobahn A3 ist perfekt.

Galerie

Grundrisse

Alle Daten auf einen Blick

Objektart

3 Zimmer Wohnung

Kaufpreis

563.700 €

Ort

90482 Nürnberg

Hausgeld

in Vorbereitung

Zimmer

3 Zimmer
1 Bad

Energieausweis

Verbrauchsausweis

Wohnfläche

87,80 m²
Endenerg.verbr.
in Vorbereitung

Baujahr

2026

Befeuerungsart

Etage

1

gültig bis

in Vorbereitung

Aufzug

Ja

Mobiliar

ohne

Stellplatztyp

Courtage

provisionsfrei für den Käufer

Weitere Unterlagen

Keine Dateien vorhanden.

Widerrufsbelehrung

Hinweis zur Widerrufserklärung

Bitte haben Sie dafür Verständnis, dass wir Sie aufgrund der neuen Gesetzesregelung zur Informationspflicht um schriftliche Bestätigung bitten, dass Sie die Widerrufsbelehrung nicht nur erhalten haben, sondern dass wir vor Ablauf der 14-Tage-Frist für Sie tätig werden sollen.

Nürnberg-Klausener-Winkel-10-1.1

Iris Schafhausen

Vielen Dank

Wir freuen uns, dass Sie Interesse an unserem Objekt haben.

Wir haben Ihre Nachricht erhalten und werden uns umgehend bei Ihnen melden.

Ihr Team von Gloßner Immobilien

Vielen Dank

Wir haben Ihre Nachricht erhalten und werden uns schnellstmöglich bei Ihnen melden.

Ihr Team von
Gloßner Immobilien